Suchkriterien

bis
bis
bis

Modernes Reihenhaus mit Dachterrasse in Greifswald

Adresse

17491 Greifswald
Deutschland

Beschreibung

Das Reihenhaus wurde 2008 in Massivbauweise errichtet.

 

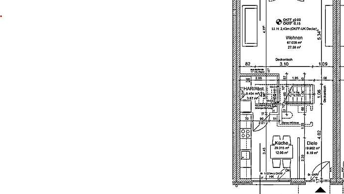
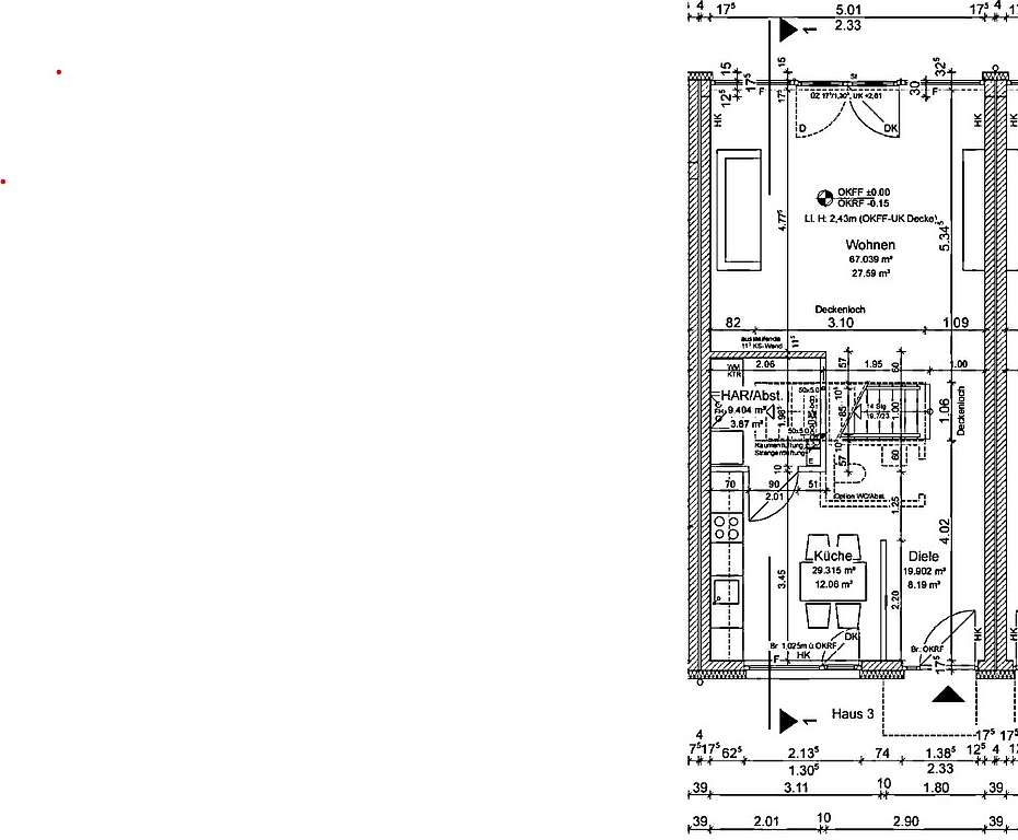
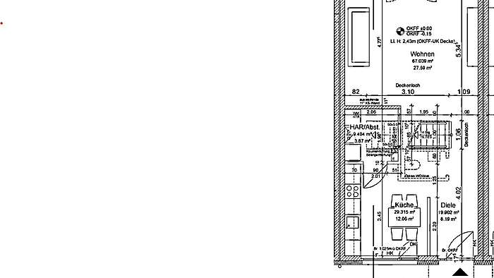
Das Erdgeschoss verfügt über ein geräumiges Wohnzimmer mit Zugang zur Süd-Terrasse, eine geräumige, offene Küche, einen Hauswirtschaftsraum sowie einen Flur.

 

Im Obergeschoss sind ein großes, offenes Studio, ein gefliestes Vollbad und ein weiteres Wohn-/ Schlafzimmer vorhanden.

 

Das Dachgeschoss verfügt über ein großes, lichtdurchflutetes Zimmer mit einer anliegenden Süd-Dachterrasse.

 

Die Zimmer sind mit Laminat bzw. Vinyl ausgestattet; Bad, Küche und Hauswirtschaftsraum sind gefliest. Die oberen Geschosse sind über moderne Stahltreppen erreichbar. Im Objekt sind eine Einbauküche, eine Waschmaschine und ein Trockner vorhanden; diese können gegen Zahlung eines Abstandes übernommen werden.

 

Das gemütliche Grundstück ist pflegeleicht gestaltet. Neben der Terrasse sind weiterhin ein kleiner Schuppen sowie Rasenfläche vorhanden. Zum Haus gehört ein PKW-Außenstellplatz.

Kaltmiete

€ 1.600,00

Überblick Objekt Nr. 03145

HaustypHaus
Wohnfläche ca.140 m²
Grundstücksfläche ca.150 m²
StellplatzartFreiplatz
Anzahl Stellplätze1
Statusfrei
Frei absofort
Zimmeranzahl4
Anzahl Schlafzimmer3
Anzahl Badezimmer1
Heizungsart und BefeuerungFernwärme
BodenbelagFliesen, Laminat
Baujahr2008
Balkon/Terrasseja
Garten/-mitbenutzungja
Einbaukücheja
Kaltmiete€ 1.600,00
Nebenkosten€ 100,00
Kaution€ 2,00
EnergieausweisartVerbrauch
Energieausweis gültig bis07.09.2028
Energieverbrauchkennwert50.33
mit Warmwasserja
PrimärenergieträgerFernwärme
Wertklasse gemäß EnEv 2014B
Energieausweis-Ausstellungsdatum07.09.2018
Energieausweis-Jahrgangab 1.5.2014
GebäudeartWohngebäude

Lage

Das Reihenhaus liegt am Rande der Obstbausiedlung, einer der begehrtesten Wohngegenden der Hanse- und Universitätsstadt Greifswald. In unmittelbarer Nähe befinden sich Einkaufsmöglichkeiten, Schule, Ärzte, Bahnhof und öffentliche Verkehrsmittel u.a.. Die Innenstadt von Greifswald ist kurzfrisitg zu erreichen. Das gesamte Wohngebiet ist in den letzten 15 Jahren entstanden und hat sich auf Grund der nahen Stadtlage zu einem begehrtem Wohnumfeld entwickelt.

Sonstiges

Kaltmiete 1.600,- €

BK 100,- €

Stellplatz 50,- €

Gesamt 1.750,- €

 

(zzgl. Strom, Wasser, Abwasser, Fernwärme)

Kontakt

Öffnungszeiten:

                           Montag bis Donnerstag von 8.00 Uhr bis 16.00 Uhr

                           Freitag von 8.00 Uhr bis 13.00 Uhr

Impressum
Info-Seiten
Datenschutzerklärung

Fehlhaber Google Bewertungen

Benutzeranmeldung

Geben Sie Ihren Benutzernamen und Ihr Passwort ein, um sich an der Website anzumelden
Anmelden
Login